Villa, Alicante / Costa Blanca · Los Montesinos

Terug naar zoekresultaten
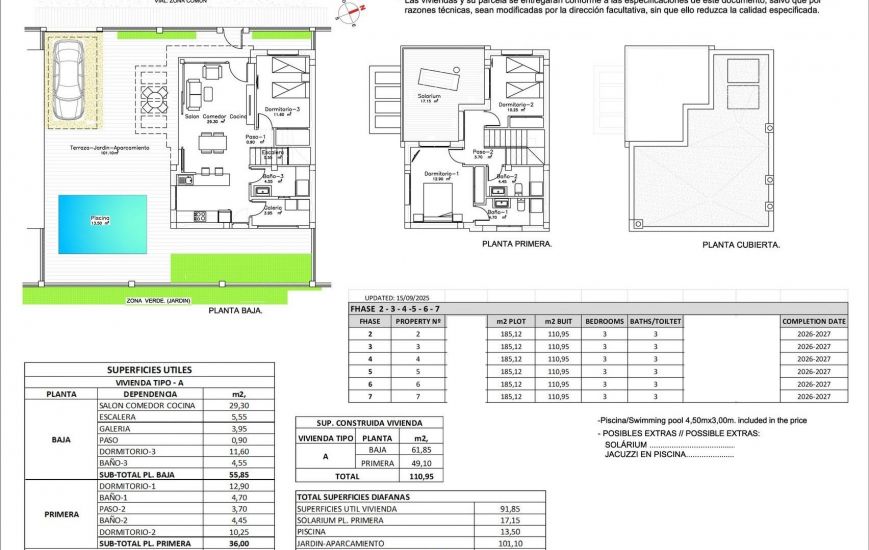
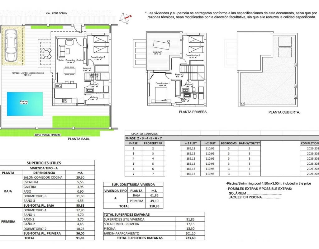
M2 110m2 M2 185m2 Slaapkamers Slaapkamers 3 badkamers badkamers 3 M2 Zwembad
Ref.: RC09-914038
  • Slaapkamers: 3
  • badkamers: 3
  • : 110m2
  • Grondstuk: 185m2
  • Energie verbruik: B
  • Zwembad
  • Garden
  • Laundry Room
  • Near Schools
  • Gated
  • Air Conditioning: Pre-Installed
  • Double Bedrooms: 3
  • Number of Parking Spaces: 1
  • Beach: 9000 Meters
  • Useable Build Space: 91 Msq.
  • Location: Rural, Urbanisation
  • Parking - Space
  • Terrace: 118 Msq.

Moderne nieuwbouwwilla's in La Herrada Los Montesinos met privézwembad Exclusief woonproject in een rustige omgeving Deze exclusieve ontwikkeling van 16 moderne villa's ligt in de prestigieuze urbanisatie La Herrada in Los Montesinos en biedt privacy, comfort en een uitstekende levenskwaliteit. La Herrada staat bekend om zijn rustige woonomgeving, de nabijheid van dagelijkse voorzieningen en de bevoorrechte ligging tussen de beroemde zoutmeren van Torrevieja en La Mata. Het is een ideale locatie voor wie op zoek is naar een ontspannen en gezonde mediterrane levensstijl in het zuiden van de Costa Blanca. Eigentijds ontwerp met geoptimaliseerde binnenruimtes Elke villa heeft 110 m² goed geplande woonruimte, verdeeld over twee verdiepingen, ontworpen om natuurlijk licht en functionaliteit te maximaliseren. De woningen zijn gebouwd op percelen vanaf 185 m² en bieden royale buitenruimtes die perfect zijn om te zonnebaden, te entertainen of te ontspannen bij het privézwembad. Comfortabele indeling over twee verdiepingen De begane grond beschikt over een open woonkamer met een volledig geïntegreerde keuken en directe toegang tot de tuin en het zwembad. Op deze verdieping bevinden zich ook een slaapkamer, een complete badkamer en een handige wasruimte. Op de bovenverdieping zijn er twee ruime slaapkamers, elk met een eigen badkamer, waarvan één en suite. Beide slaapkamers hebben toegang tot een privé terras van 17 m². Voor wie nog meer buitenruimte wil, is er tegen meerprijs een optioneel solarium op het dak beschikbaar. Hoogwaardige afwerking en moderne voorzieningen De villa's zijn voorzien van hoogwaardige afwerkingen, zoals badkamermeubilair, spiegels, doucheschermen en vloerverwarming in alle badkamers. Er is een voorinstallatie voor airconditioning, een gemotoriseerde toegangspoort voor voertuigen, een eigen parkeerplaats op het perceel en een afgesloten toegang tot de woonwijk via een eigen interne straat. Toplocatie dicht bij belangrijke voorzieningen en attracties Stranden van Guardamar en Torrevieja op 9 km La Marquesa Golf, La Finca Golf en Vistabella Golf binnen 5 km Luchthaven Alicante op 29 km Natuurparken, zoutmeren, fietsroutes en wandelpaden in de buurt Comfortabel wonen in het hart van de Costa Blanca Deze nieuwbouwwoningen in Los Montesinos bieden de perfecte combinatie van modern comfort, een natuurlijke omgeving en uitstekende bereikbaarheid. Of u nu op zoek bent naar een permanente woning of een vakantiehuis, dit project biedt alles wat u nodig heeft om te genieten van een rustige en comfortabele mediterrane levensstijl. Neem vandaag nog contact met ons op om een bezichtiging te regelen en uw nieuwe woning in La Herrada te bemachtigen.


Bereken uw hypotheek


Wisselkoers

  • Pond Sterling: 0 GBP
  • Russische roebel: 0 RUB
  • Zwitserse Frank: 0 CHF
  • Chinese Yen: 0 CNY
  • Amerikaanse dollar: 0 USD

×

Verwittig mij als de prijs daalt

×

Maandelijkse prijzen

  • januari 0 €
  • februari 0 €
  • maart 0 €
  • april 0 €
  • mei 0 €
  • juni 0 €
  • juli 0 €
  • augustus 0 €
  • september 0 €
  • oktober 0 €
  • november 0 €
  • december 0 €
×

Zend naar een vriend


×
Bedankt dat je contact met ons hebt opgenomen

Het bericht is succesvol verzonden

×
Bedankt dat je contact met ons hebt opgenomen

Allereerst bedankt dat je contact met ons hebt opgenomen.

We hebben een aanvraag voor een rapport ontvangen als u de prijs van het onroerend goed met de referentie verlaagt: RC09-914038

×

Getuigenissen

Kamal

"I would thoroughly recommend Lee at the Resale Centre. Polite, efficient and effective. Turned our sale around in a matter of weeks. Delighted with the service ...
5.0
2019-05-09T009:30:00+01:00
Kamal
"I would thoroughly recommend Lee at the Resale Centre. Polite, efficient and effective. Turned our sale around in a matter of weeks. Delighted with the service ...

Lynne and Anna Turvey

"​We are very happy with the personal service we received from Resale Centre, and would strongly recommend your service to people looking for property in Torrevieja. Kind regards, Lynne and Anna Turvey ...
5.0
2019-04-08T009:30:00+01:00
Lynne and Anna Turvey
"​We are very happy with the personal service we received from Resale Centre, and would strongly recommend your service to people looking for property in Torrevieja. Kind regards, Lynne and Anna Turvey ...

Niall & Deborah Kerr

"Cannot thank Resale Centre enough for their time and advice in finding our dream Spanish home, they went over and above what you would expect to help us out. They listened to our requirements and found us various properties in different areas to view showing us all the places of interest that would fulfil our needs. They also gave us excellent advice ...
5.0
2019-03-20T009:30:00+01:00
Niall & Deborah Kerr
"Cannot thank Resale Centre enough for their time and advice in finding our dream Spanish home, they went over and above what you would expect to help us out. They listened to our requirements and found us various properties in different areas to view showing us all the places of interest that would fulfil our needs. They also gave us excellent advice ...

Brian and Joyce Marland

"Many thanks for your assistance in finding and buying our pequeña casa in El Chaparral. We appreciated the unhurried attention you gave when viewing the house and the offer of your local knowledge when we come to need tradesmen to fix a few things up. Your dealings with the lawyer, on our behalf, was helpful and much appreciated ...
5.0
2019-02-01T009:30:00+01:00
Brian and Joyce Marland
"Many thanks for your assistance in finding and buying our pequeña casa in El Chaparral. We appreciated the unhurried attention you gave when viewing the house and the offer of your local knowledge when we come to need tradesmen to fix a few things up. Your dealings with the lawyer, on our behalf, was helpful and much appreciated ...

C & D Winstanley

"We have just completed on our property in Algorfa Spain. Lee from Resale Centre took us to view properties, what we thought was going to be a stressful time was totally the opposite. There was no pressure very friendly, even introduced us to a lawyer who completed the transaction again with no stress ...
5.0
2019-01-30T009:30:00+01:00
C & D Winstanley
"We have just completed on our property in Algorfa Spain. Lee from Resale Centre took us to view properties, what we thought was going to be a stressful time was totally the opposite. There was no pressure very friendly, even introduced us to a lawyer who completed the transaction again with no stress ...

John and Wendy Houghton

"Dear Lee, Thank you for the excellent service and support during the sale of our apartment. Your straightforward advice and knowledge was invaluable and very much appreciated. We would highly recommend your services. Regards, John and Wendy Houghton ...
5.0
2019-01-30T009:30:00+01:00
John and Wendy Houghton
"Dear Lee, Thank you for the excellent service and support during the sale of our apartment. Your straightforward advice and knowledge was invaluable and very much appreciated. We would highly recommend your services. Regards, John and Wendy Houghton ...

Liberty and Jesus

"Thanks Lee and Terry. Having contacted Resale Centre last minute having been let down by other agents in the area we really appreciative of how he listened to our budget and requirement and found us suitable properties to view and eventually purchase!! As a young determined ...
5.0
2019-01-08T009:30:00+01:00
Liberty and Jesus
"Thanks Lee and Terry. Having contacted Resale Centre last minute having been let down by other agents in the area we really appreciative of how he listened to our budget and requirement and found us suitable properties to view and eventually purchase!! As a young determined ...

Elaine and Gary Sutton

"I understand that the sale of our property was completed last Friday the 16th November. I would just like to thank you both for helping to sell our property. We can now look forward to purchasing some more property in Spain that will suit our needs more than that ...
5.0
2018-11-19T009:30:00+01:00
Elaine and Gary Sutton
"I understand that the sale of our property was completed last Friday the 16th November. I would just like to thank you both for helping to sell our property. We can now look forward to purchasing some more property in Spain that will suit our needs more than that ...

John Whittaker

"Given the short notice of a couple of days Lee managed to introduce us to the local real estate market and before we had finished our trip with his help managed to secure an investment property in Torrevieja. Once we had left Spain they helped us through the whole ...
5.0
2018-06-28T009:30:00+01:00
John Whittaker
"Given the short notice of a couple of days Lee managed to introduce us to the local real estate market and before we had finished our trip with his help managed to secure an investment property in Torrevieja. Once we had left Spain they helped us through the whole ...

Andrew and Angela

"Lee and Terry have been marvellous in the recent sale of our Spanish property. We bought it through them many years ago and there was no competition at all in our minds as to who we would ask to sell it for us. Friendly, approachable and professional at all times ...
5.0
2018-05-14T009:30:00+01:00
Andrew and Angela
"Lee and Terry have been marvellous in the recent sale of our Spanish property. We bought it through them many years ago and there was no competition at all in our minds as to who we would ask to sell it for us. Friendly, approachable and professional at all times ...

Paolo

"Hi Lee, Happy to endorse you as you did a great job from start to finish. Your firm was really efficient and made the sale very straightforward. You were supportive and took the time to explain things. I would happily recommend you to anyone. Regards, Paolo ...
5.0
2018-04-26T009:30:00+01:00
Paolo
"Hi Lee, Happy to endorse you as you did a great job from start to finish. Your firm was really efficient and made the sale very straightforward. You were supportive and took the time to explain things. I would happily recommend you to anyone. Regards, Paolo ...

Barry and Jane Cooke

"We have just sold our bungalow in Torrevieja through The Resale Centre. Lee sold the property to Swedish buyers and the sale was completely hastle free and the bungalow sold for a fair price in under six months, which was alot quicker than we expected considering the current housing climate ...
5.0
2018-03-27T016:30:00+01:00
Barry and Jane Cooke
"We have just sold our bungalow in Torrevieja through The Resale Centre. Lee sold the property to Swedish buyers and the sale was completely hastle free and the bungalow sold for a fair price in under six months, which was alot quicker than we expected considering the current housing climate ...

Robert Legowski

"Contacted Lee from the Resale Centre late 2017 by email and he advised me and my girlfriend to come over for a few days to look at the area and several properties. Lee picked us up from the hotel and showed us the area and many properties, we found from the start everything was professional and relaxed ...
5.0
2018-03-20T014:30:00+01:00
Robert Legowski
"Contacted Lee from the Resale Centre late 2017 by email and he advised me and my girlfriend to come over for a few days to look at the area and several properties. Lee picked us up from the hotel and showed us the area and many properties, we found from the start everything was professional and relaxed ...

Lynn & Jamie

"We were interested in purchasing a property in Torrevieja and had been in email contact with Lee at the Resale Centre prior to viewing some properties. He picked us up at our apartment on the Friday morning and took us to view properties we had seen online - as well as throwing in a couple ...
5.0
2018-02-28T016:30:00+01:00
Lynn & Jamie
"We were interested in purchasing a property in Torrevieja and had been in email contact with Lee at the Resale Centre prior to viewing some properties. He picked us up at our apartment on the Friday morning and took us to view properties we had seen online - as well as throwing in a couple ...

Helen Hinchy & Paul Ebsworthy

"I contacted the Resale Centre in June 2017 and within a very short time I had a meeting set up with Terry. After having a gruelling day with another agent looking at properties that did not match our needs we had the pleasure of meeting Terry. Wow! He just got us and within minutes ...
5.0
2018-02-14T009:30:00+01:00
Helen Hinchy & Paul Ebsworthy
"I contacted the Resale Centre in June 2017 and within a very short time I had a meeting set up with Terry. After having a gruelling day with another agent looking at properties that did not match our needs we had the pleasure of meeting Terry. Wow! He just got us and within minutes ...

Kevin Smith

"Less than 4 weeks after giving my property to the guys I got a call to say they had a buyer. I couldn't believe how quickly they had found a buyer as my experience with the previous agent hadn't been a good one. I had only given them the property at the very end of October and with ...
5.0
2018-02-06T009:30:00+01:00
Kevin Smith
"Less than 4 weeks after giving my property to the guys I got a call to say they had a buyer. I couldn't believe how quickly they had found a buyer as my experience with the previous agent hadn't been a good one. I had only given them the property at the very end of October and with ...

Paul Crosby

"Our experience on selling our apartment with The Resale Centre in Torrevieja. We went to The Resale Centre in Torrevieja and we were greeted by Terry and Lee we explained to them we want to sell our apartment in Torrevieja. Terry came to view our apartment the very next day and explained all ...
5.0
2018-01-22T009:30:00+01:00
Paul Crosby
"Our experience on selling our apartment with The Resale Centre in Torrevieja. We went to The Resale Centre in Torrevieja and we were greeted by Terry and Lee we explained to them we want to sell our apartment in Torrevieja. Terry came to view our apartment the very next day and explained all ...

Steve Byrne

"If a move to Spain is your dream but your afraid to take the leap then fear no more, I was in that situation when I came across the Resale Centre, Lee reassured me every step of the way and I was kept fully informed of everything to do with the purchase by Lee and his legal team who were equally ...
5.0
2018-01-16T009:30:00+01:00
Steve Byrne
"If a move to Spain is your dream but your afraid to take the leap then fear no more, I was in that situation when I came across the Resale Centre, Lee reassured me every step of the way and I was kept fully informed of everything to do with the purchase by Lee and his legal team who were equally ...

The Bryan family

"Thanks for all your help and advice, found us our dream property on the Orihuela Costa. Introduced us to lawyers / banks and currency companies that have all been superb. Thanks again The Bryan family ...
5.0
2017-12-16T009:30:00+01:00
The Bryan family
"Thanks for all your help and advice, found us our dream property on the Orihuela Costa. Introduced us to lawyers / banks and currency companies that have all been superb. Thanks again The Bryan family ...

Shirley Brien

"100% reccomend. We bought a property in Spain through the Resale Centre we dealt with Terry & Lee. The service was second to none, I would 100% reccomend buying through this agency, they made the whole process so easy and quick. Shirley Brien ...
5.0
2017-12-05T009:30:00+01:00
Shirley Brien
"100% reccomend. We bought a property in Spain through the Resale Centre we dealt with Terry & Lee. The service was second to none, I would 100% reccomend buying through this agency, they made the whole process so easy and quick. Shirley Brien ...

Mrs Julia Reeves

"Good afternoon folks. This is to thank you all for helping me with the sale of my property on La Siesta ... I do miss the place. The final monies reached my account here in the UK today ... all done and dusted now ... once again, thank you again for your help. Regards, Mrs Julia Reeves – ex.Calle ...
5.0
2017-01-23T009:30:00+01:00
Mrs Julia Reeves
"Good afternoon folks. This is to thank you all for helping me with the sale of my property on La Siesta ... I do miss the place. The final monies reached my account here in the UK today ... all done and dusted now ... once again, thank you again for your help. Regards, Mrs Julia Reeves – ex.Calle ...
5.0
21

×